‘환기‧미세먼지‧바이러스 제거’ 기능 탑재
바이러스 99.9%, 세균 99.5% 제거 가능
바이러스 99.9%, 세균 99.5% 제거 가능
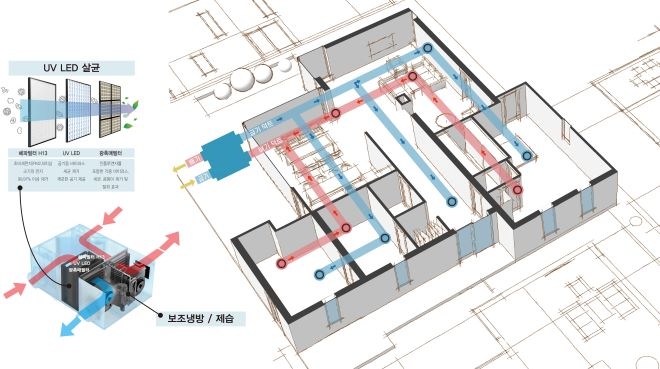
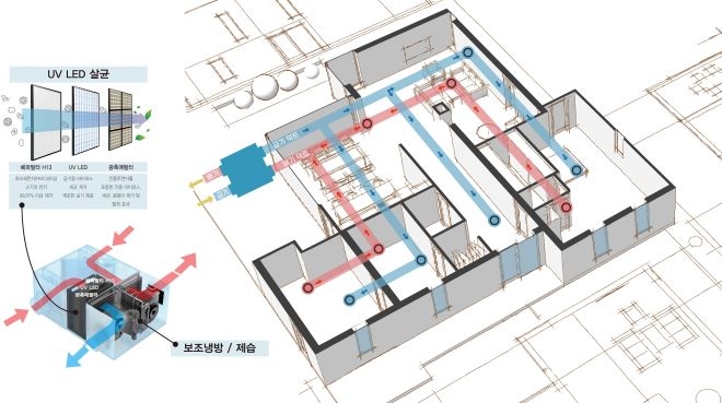
이미지 확대보기10일 대림산업에 따르면 이 시스템은 공기청정형 환기시스템에 자외선 발광다이오드(UV LED) 광촉매 모듈을 탑재해 바이러스를 제거한다. UV LED는 인체와 환경에 미치는 부작용은 적은 대신 살균 효과는 우수한 것으로 알려졌다.
실제 이 환기시스템은 한국산업기술시험원(KTL) 시험결과 부유바이러스 저감률 99.9%, 부유세균 저감률 99.5%, 오존 발생농도 0.009ppm 등의 성능을 확보한 것으로 평가 받았다.
안티 바이러스 환기시스템 적용으로 환기부터 초미세먼지와 바이러스 제거까지 한 번에 해결할 수 있다는 것이 회사 측의 설명이다.
이재욱 대림산업 주택설비팀 팀장은 “환기시스템 하나로 공기청정부터 살균, 냉방, 제습 기능까지 한꺼번에 구현한 것은 대림이 업계 최초”라며 “환기시스템 자체가 완벽한 살균 기능을 가질 수 있도록 신소재를 적용하는 방안을 연구 중”이라고 말했다.
김하수 글로벌이코노믹 기자 hskim@g-enews.com



















![[엔비디아 GTC 2026] 'AI 추론 칩' 공개로 주가 반등 시동 걸리나](https://nimage.g-enews.com/phpwas/restmb_setimgmake.php?w=80&h=60&m=1&simg=2026031418273707380fbbec65dfb211211153121.jpg)












